Palazzo\Stabile a Trento

Per ulteriori informazioni Collegati a Immobiliare.it

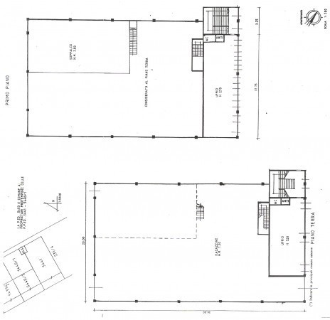
  •  Dimensioni: 950 m²
  •  Bagni: 2
    • TIPOLOGIA: Annuncio agenzia
    Inserito il 13 novembre 2012

    trento zona commerciale via maccani affitto capannone con comodo accesso anche di camion. completo di uffici su due piani . capannone mq. 750 - altezza m.8 + soppalco di mq. 200 + uffici mq. 200 completamente arredati, cablati, termoautonomo e condizionamento. vari posti auto esterni. - info 3398377308

    Preferiti
    Trattativa Riservata