Appartamento a Milano

Per ulteriori informazioni Collegati a Gabetti

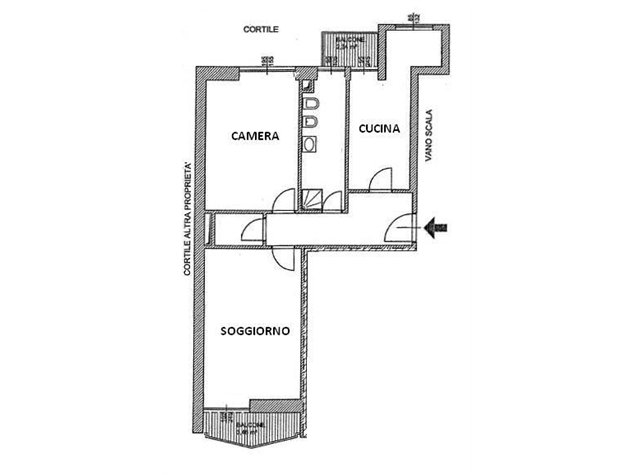
  •  Stanze: 2
  •  Bagni: 1
  •  Piano: Secondo
  •  Riscaldamento: Centralizzato
    • TIPOLOGIA: Annuncio agenzia
    Inserito il 8 novembre 2012

    rif. AA01 - Via Zuretti 47 affittasi bilocale con cucina abitabile di mq. 75 in sito condominiale con portineria. Piano secondo, molto silenzioso. Possibilità di ristrutturazione personalizzata con costi a dedurre dalla locazione. Classe G IPE 260,54 - Canone € 830/mese comprese spese - GABETTI CAGLIERO 02.670.77.466

    Preferiti
    830 € al mese