Appartamento a Firenze
ponte alle mosse

Per ulteriori informazioni Collegati a Mioaffitto

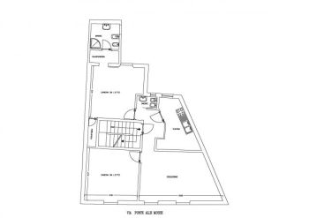
  •  Dimensioni: 90 m²
  •  Stanze: 4
  •  Bagni: 2
  •  Piano: Secondo
  •  Riscaldamento: Autonomo
  •  Giardino: No
    • TIPOLOGIA: Annuncio agenzia
    Inserito il 30 ottobre 2012

    Affittasi appartamento arredato: 2 matrimoniali (4 posti letto), sala doppia (2 posti letto), cucina abitabile accessoriata, doppi servizi, parquet, termosingolo, aria condizionata, parabola, tv, adsl connessione w-fi (a richiesta), biancheria e asciugamani, lavatrice, lavastoviglie, finiture di pregio e ottime condizioni.

    Preferiti
    1100 € al mese