Ufficio a Firenze
via urbano rattazzi 2/e/1
lorenzo vallerini  (Guarda gli altri 2 immobili)
3357324397
Contatta




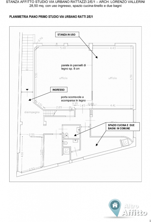
  •  Dimensioni: 28 m²
  •  Stanze: 1
  •  Bagni: 2
  •  Piano: Primo
    • TIPOLOGIA: Annuncio privato
    Inserito il 24 gennaio 2014

    Grande e luminosa stanza di ca. 28 mq divisibile 2-3 persone, all'interno di uno Studio di Architettura sito in Via Urbano Rattazzi 2/ E/ 1 zona Piazza Alberti. Disponibili rete wirless, uso bagni (2) e uso cucina. Piano primo, libera da subito, 380 euro/mese + spese forfettarie (internet, pulizie, luce, acqua, riscaldamento, tassa rifiuti) da concordare. Per contatti: e-mail – [email protected], tel. 055/611180, cell. 335/7324397

    Preferiti
    Contatta
    380 € al mese